EFH Weil der Stadt
Objektbeschreibung
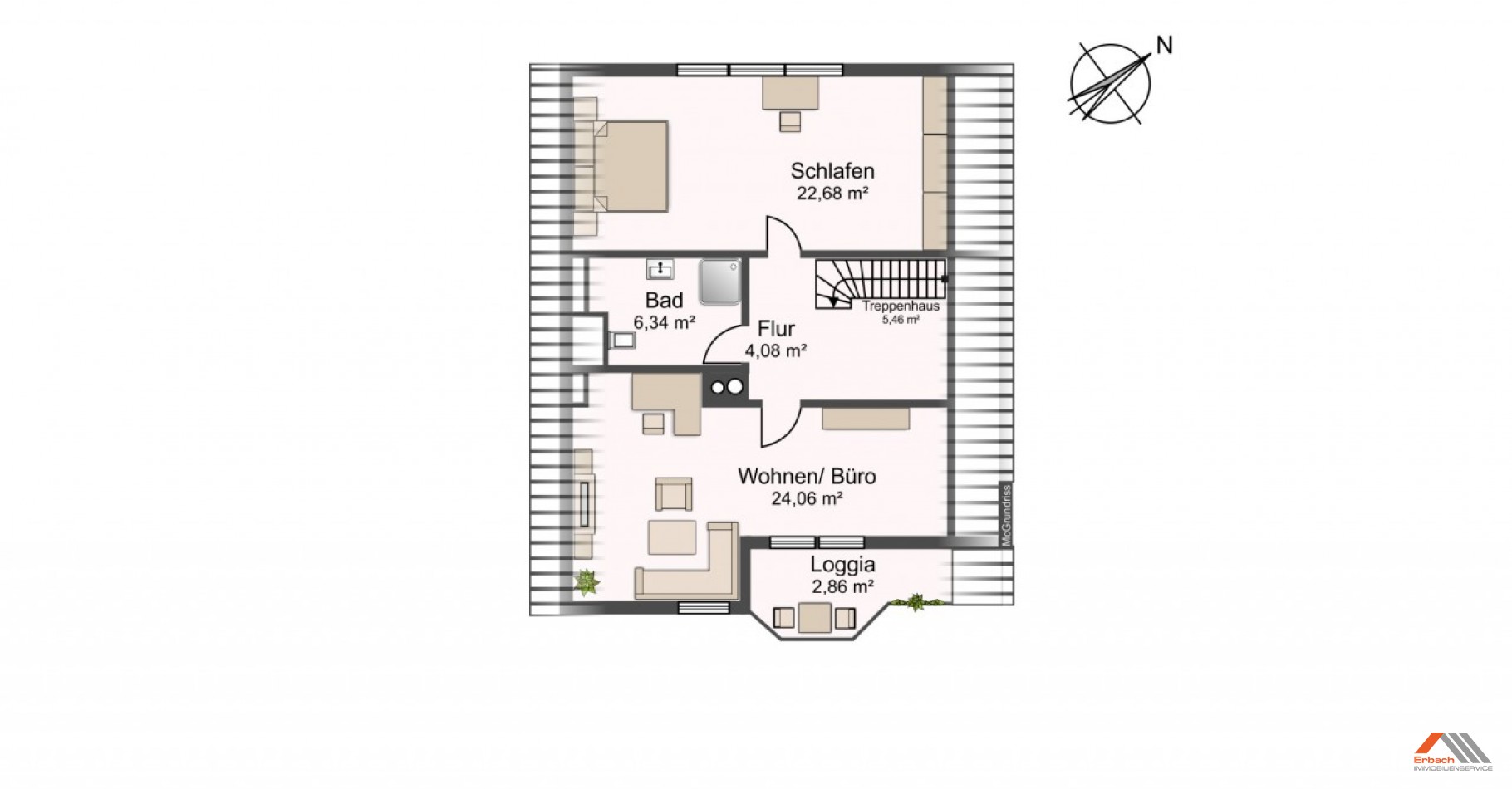
Dieses freistehende Einfamilienhaus vereint durchdachte Architektur, hochwertige Bauweise und vielseitige Nutzungsmöglichkeiten auf ca. 202 m² Wohnfläche. In bevorzugter, ruhiger Aussichtslage gelegen, genießen Sie hier ein Wohnambiente mit Privatsphäre, Licht und Weite. Das ca. 538 m² große Grundstück bietet ausreichend Platz für Familie, Freizeit und Erholung. Die Immobilie eignet sich ideal für Familien oder eine Kombination aus Wohnen und Arbeiten unter einem Dach.
Das Haus ist in zwei unterschiedlichen Bauweisen errichtet: Das Sockelgeschoss in Massivbauweise (Beton) umfasst einen Wohnraum, den großzügigen Hauseingang mit Diele, einen Hobbyraum, Kellerräume sowie die Garage.
Erd- und Dachgeschoss wurden in solider Holzständerkonstruktion ausgeführt, innen wie außen verputzt und über eine offene Treppe miteinander verbunden. Das großzügige Satteldach mit 30° Neigung und Nord-/West-Ausrichtung ergänzt das harmonische Gesamtbild.
Als Fertighaus der Firma OKAL verbindet diese Bauweise ein stabiles Sockelgeschoss mit den leichten, energieeffizienten Holzständer-Geschossen und sorgt so für optimalen Wohnkomfort in allen Etagen.
Der Außenbereich bietet gepflegte Gartenflächen sowie eine überdachte Terrasse, die zum Entspannen und geselligen Beisammensein einlädt.
In den Jahren 2012 bis 2016 wurde das Haus umfassend modernisiert und technisch wie optisch auf den neuesten Stand gebracht. Besonders das Erdgeschoss wurde neu strukturiert und hochwertig gestaltet. Die Modernisierungen umfassten sowohl die technische Ausstattung, inklusive Heizung, Sanitär- und Elektroinstallationen als auch die Innenräume. Türen, Dachfenster, Bodenbeläge und Wände wurden erneuert und aufgefrischt, die Fassade und die Haustüranlage modernisiert.
Heute präsentiert sich das Haus in einem exzellent gepflegten, zeitgemäßen Zustand. Es bietet gehobenen Wohnkomfort und sofortige Bezugsfertigkeit.
Überblick
- Angebotsart: Kaufen
- Immobilientyp: Haus
- Verfügbar ab: 01.04.2026
- Besichtigung: n.V.
- Baujahr: 1988
- Zimmer: 7
- Wohnfläche: 202 m²
- Nutzfläche: 87 m²
- Grundstücksgröße: 538 m²
- Preis: 895.000 EUR
Objekt-Nr
- Objekt-Nr: 2026-143
Provision
- Provision: Provision: 2,975% vom Kaufpreis inkl. 19% gesetzt. MwSt. Die Provision wird nur im Erfolgsfall mit Unterzeichnung des notariellen Kaufvertrags sofort zur Zahlung fällig. Der Immobilienmakler hat einen provisionspflichtigen Maklervertrag mit dem Verkäufer in gleicher Höhe abgeschlossen.
Ausstattungsmerkmale
- * ca. 202 m² Wohnfläche auf drei Wohnebenen * ca. 538 m² Grundstück in ruhiger Aussichtslage * Küche, Wohn-und Esszimmer sowie 5 Schlaf-/Kinder-/Arbeitszimmer * offener Wohn-/Essbereich mit Kamin * großzügige Verglasung der Terrassentüren und -fenster * moderne hochwertige Einbauküche * zwei Tageslichtbäder mit bodentiefen Duschen * zusätzliche Gästetoilette<br />* Böden aus Echtholzdielen * Bäder mit Feinsteinfliesenböden * gemütlicher überdachter Balkon im DG * großzügige Terrasse und traumhafter Garten * integrierte Doppelgarage mit elektrischen Toren und direktem Zugang ins Haus * zusätzliche Stellplätze vor der Garage * geräumige Nutzflächen * beziehbar ab April 2026
- Kabelanschluss
- Internet/TV
- Einbauküche
- Gäste-WC
weitere Merkmale
- Balkon
- Terrasse
- Garten
- Keller
- Garage
- Stellplatz
- Abstellraum
Energie-Angaben
- Energieausweis: liegt für das Gebäude vor
- Energieausweistyp: Verbrauchsausweis
- Heizungsart: Erdgas H
- Wesentlicher Energieträger: Erdgas H
- Energieverbrachskennwert: 84,41kWh/(m²*a)
- Energieeffizienzklasse: C
Lage
- PLZ: 71263
- Land: Deutschland
- Weil der Stadt besteht aus den fünf Stadtteilen und zählt rund 19.000 Einwohner. Vom Haus ist man in wenigen Minuten direkt im Zentrum. Landschaftlich ist die Umgebung von Weil der Stadt besonders reizvoll. Ausgestreckte Hänge mit weitem Ackerland, Hecken und große Waldflächen laden zu ausgedehnten Spaziergängen ein. In der Stadt gibt es neben einer Grund-, Haupt- und Werkrealschule auch mehrere Kindergärten mit individuellen Betreuungsangeboten. Ortsnahe Einkaufsmöglichkeiten sowie seniorengerechtes Wohnen mit verschiedenen Pflegeangeboten bieten rundum optimale Lebensbedingungen. Über die Bundesstraße 295 ist Weil der Stadt an das überregionale Straßen- und Autobahnnetz angebunden.
Multimedia
Hinweis
- Wir verkaufen die Immobilie im Alleinauftrag. Alle vom Makler bereitgestellten Informationen werden als zuverlässig erachtet, aber nicht garantiert und sollten unabhängig verifiziert werden. Wir übernehmen keinerlei Gewähr für die Richtigkeit der Angaben. Wir bitten um Ihr Verständnis, dass wir ausschließlich Anfragen bearbeiten können, die unter vollständiger Angabe der Kontaktdaten (Anschrift, E-Mail-Adresse und Telefonnummer) eingehen.
Standort / Karte
Überblick
- Adresse: 71263 Weil der Stadt
- Angebotsart: Kaufen
- Immobilientyp: Haus
- Verfügbar ab: 01.04.2026
- Besichtigung: n.V.
- Baujahr: 1988
- Zimmer: 7
- Wohnfläche: 202 m²
- Nutzfläche: 87 m²
- Grundstücksgröße: 538 m²
- Preis: 895.000 EUR















































